RG architectes-marathon-renovation-cabinet dentaire-louvain-la-neuve-image-projet-01

Marathon

Rénovation et transformation d'un cabinet dentaire

Secteur : Équipement
Type : Rénovation
Localisation : Louvain-la-Neuve
Surface : 150 m2
Maître d’ouvrage : Apicale srl
Statut : En cours
Date : 2024
Image 3D : RG architectes
pattern pattern
RG architectes-marathon-renovation-cabinet dentaire-louvain-la-neuve-image-projet-02
RG architectes-marathon-renovation-cabinet dentaire-louvain-la-neuve-image-projet-03
RG architectes-marathon-renovation-cabinet dentaire-louvain-la-neuve-image-projet-04
RG architectes-marathon-renovation-cabinet dentaire-louvain-la-neuve-image-projet-05
RG architectes-marathon-renovation-cabinet dentaire-louvain-la-neuve-image-projet-06
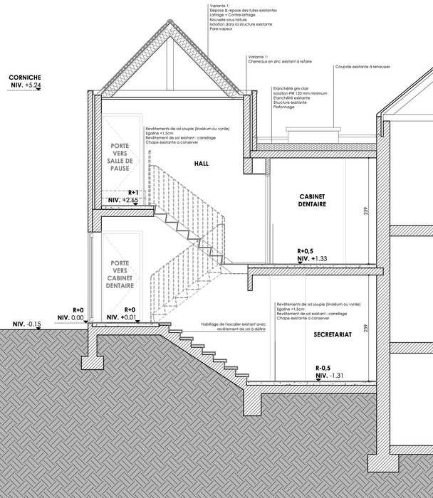
RG architectes-marathon-renovation-cabinet dentaire-louvain-la-neuve-Plans-Coupe AA
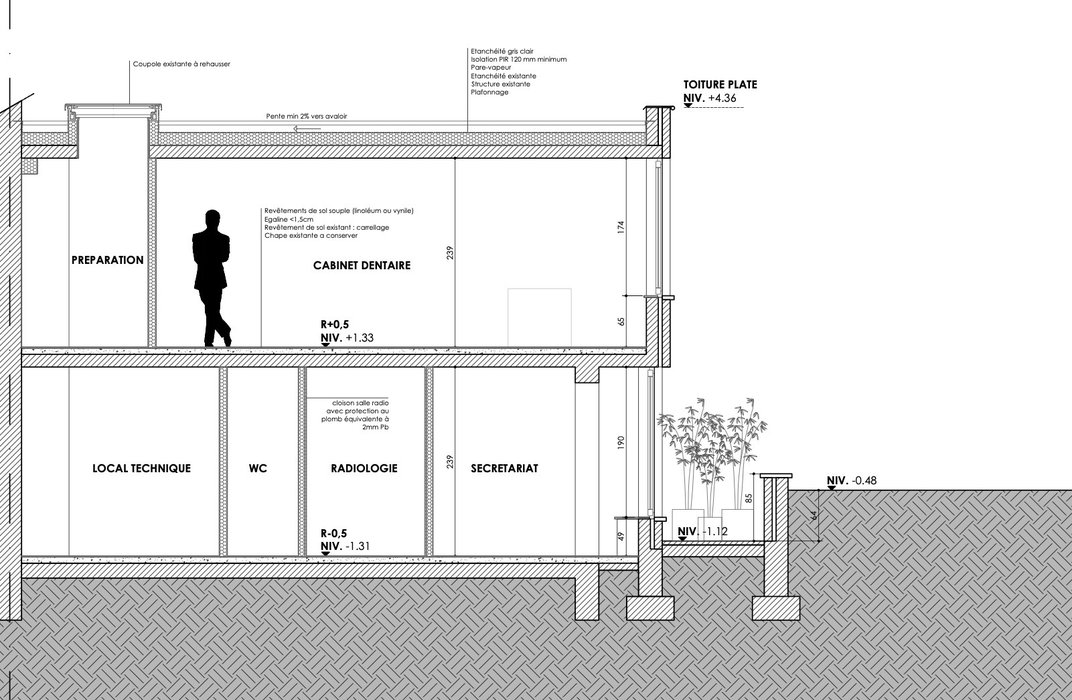
RG architectes-marathon-renovation-cabinet dentaire-louvain-la-neuve-Plans-Coupe BB
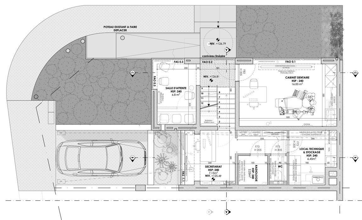
RG architectes-marathon-renovation-cabinet dentaire-louvain-la-neuve-Plans-R+0
RG architectes-marathon-renovation-cabinet dentaire-louvain-la-neuve-Plans-R+1
1 /
Lien copié